Från den 1 mars gäller nya parkeringsplatser för alla som har parkeringsplats genom vår förening. De flesta flyttar över till inomhusparkering i Deckshuset mitt emot entrén på våning 1. Passerkort till Deckshuset kommer att distribueras under vecka 9. Mer information om parkering i Deckshuset finns på deckshuset.se.
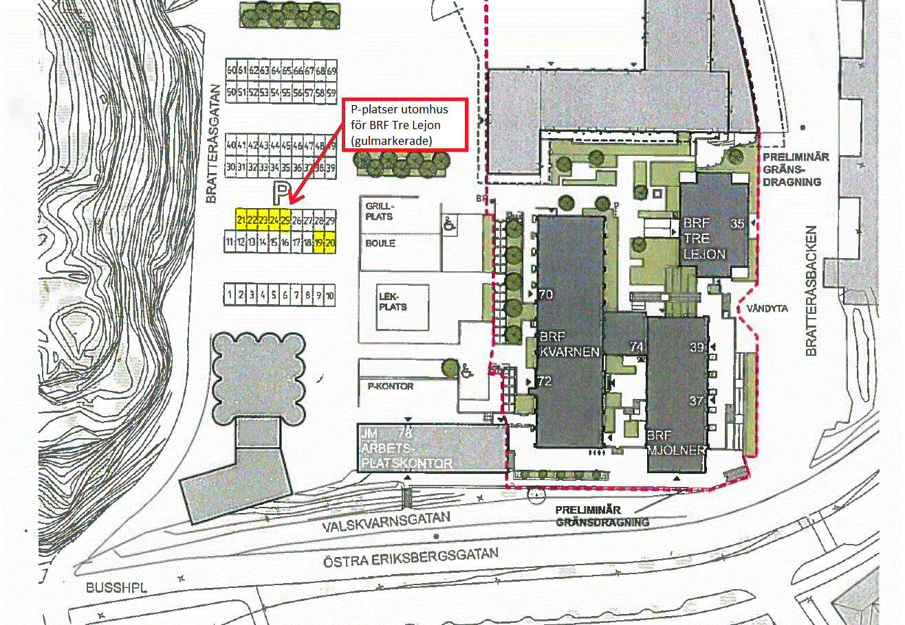
Även för de som tills vidare står kvar utomhus gäller nya parkeringsplatser. Information om nya platser meddelas under vecka 9. Området där våra nuvarande utomhusplatser är belägna kommer stängas av under mars månad. Kartan nedan visar placeringen av våra nya utomhusplatser.


